Type
Restoration & Reuse
Location
İzmir
Year
2023
Status
Constructed
Collabration
with GemAlf
Photographs
Ediz Demirel
Taş Ev is a project to revive a century-old family home. Used by three generations of a family, the stone house needed renovation to come back to life with its new owner.
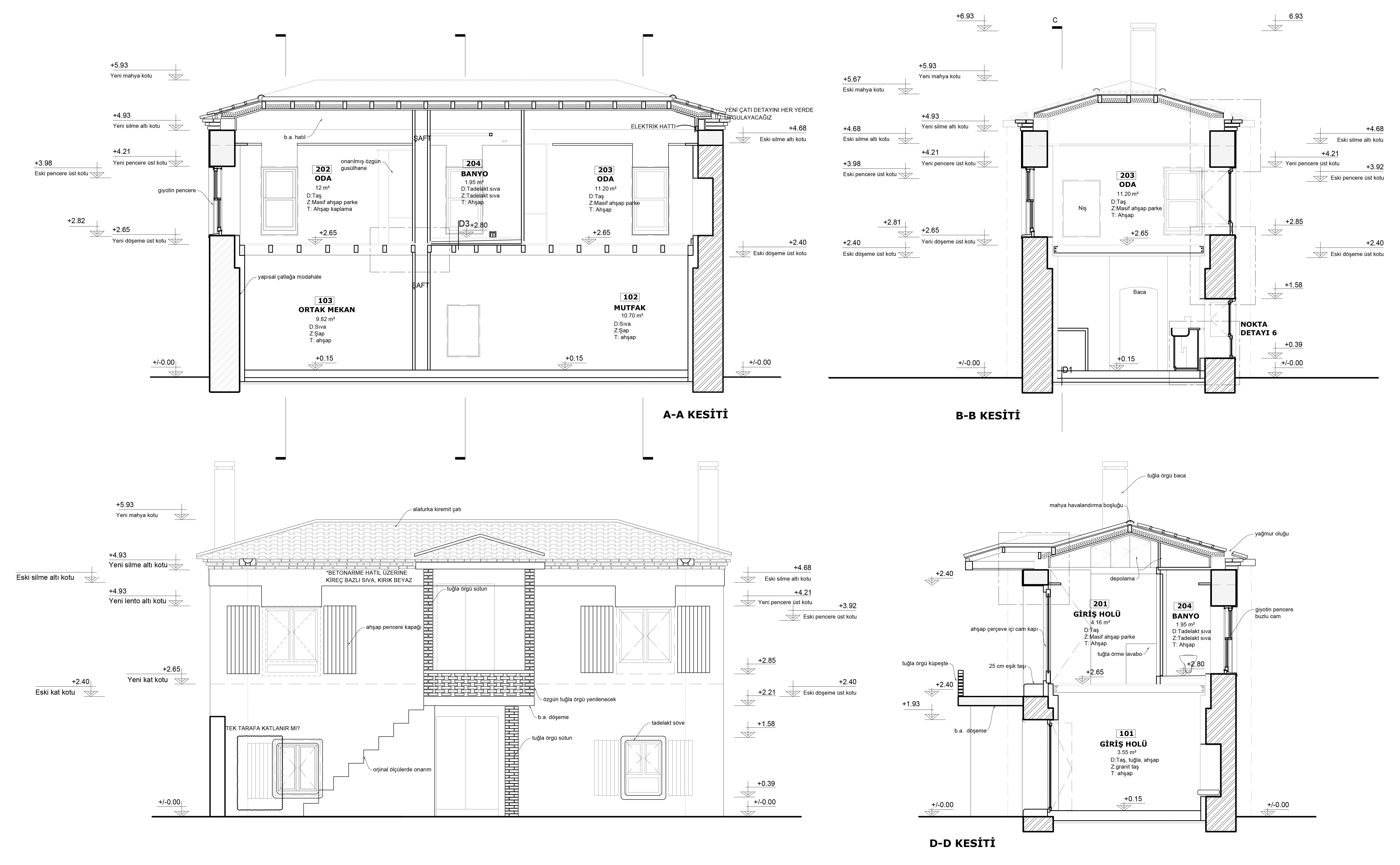
In the early stages of the project, demolishing and rebuilding the ruined house, which faced many structural risks, seemed like a realistic approach. However, as a design team, we sought ways to preserve the existing stone building without demolition by taking extreme structural measures.
The interior was emptied and reorganized, but minimal intervention was made to the building's shell and its relationship with the surroundings.
We aimed to highlight our contemporary interventions with a reinforced concrete beam integrated with the upper floor window lintels. Inside, we strengthened the overall structural integrity by connecting new load-bearing shear walls to the reinforced concrete lintel.
While the historic stone structure contains a bedroom and a spacious living area, additional structures were built to meet increasing needs over time.

















